Spichlerz Iława apartament dwupoziomowy
Iława Pokaż na mapie ›
Dodane: Wtorek, 24 Luty, 2026 17:20
978 480 zł
8020 zł/m2
Szczegóły ogłoszenia
- Kategoria: Mieszkania / Sprzedaż
- Powierzchnia:122 m2
- Liczba pokoi:5 i więcej pokoi
- Zabudowa:Apartamentowiec
- Tech. budowy:Cegła
- Piętro :2 piętro
- Liczba pięter:2 piętra
- Rynek:Wtórny
- Rok budowy:1935
- Sprzedaż:Pośrednik
- Inf. dodatkowe:Balkon
- Cena: 978 480 zł / 8020 zł/m2
Opis oferty
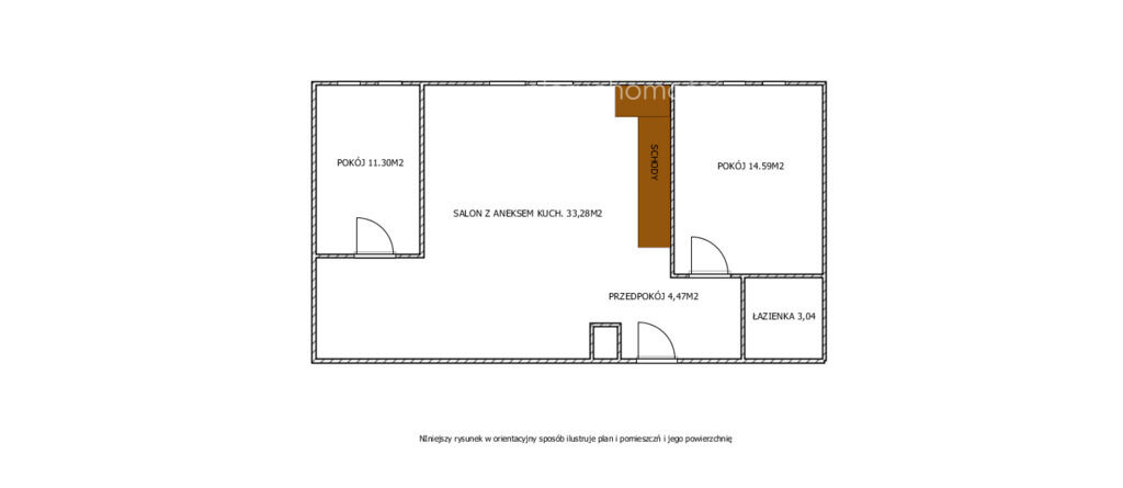
W sercu Iławy, w wyjątkowej inwestycji Spichlerz, znajduje siędwupoziomowy loft o powierzchni 122 m², który łączy historię z
nowoczesnością w najlepszym wydaniu.
Budynek z 1935 roku przeszedł generalny remont i został oddany do
użytkowania w 2021 roku. Zachowano jego historyczny charakter,
jednocześnie nadając mu współczesny standard i komfort.
To miejsce z duszą — oryginalna czerwona cegła, stalowe detale
oraz dębowe elementy tworzą industrialny klimat, który trudno
znaleźć w nowym budownictwie.
Dolny poziom obejmuje przestronny salon z aneksem kuchennym,
łazienkę oraz 2 pokoje.
Na górze znajdują się kolejne 2 pokoje oraz łazienka, a każdy
pokój jest doskonale doświetlony dzięki świetlikom dachowym.
Dodatkowo antresola daje efektowną przestrzeń.
Stan mieszkania daje pełną swobodę aranżacji — łazienki oraz
kuchnia są do wykończenia według własnego projektu, co pozwala
stworzyć wnętrze idealnie dopasowane do indywidualnych potrzeb i
stylu.
Szczegóły oferty: Freedom Iława Kopernika, Arkadiusz Piotrowski
tel. 451 - pokaż numer telefonu -
* Do ceny nieruchomości należy doliczyć koszty okołotransakcyjne.
"Właścicielem ogłoszenia wraz z jego elementami jest Freedom
Nieruchomości Sp. z o.o. lub podmioty współpracujące. Wszelkie
prawa zastrzeżone. Kopiowanie, rozpowszechnianie oraz korzystanie z
niniejszych materiałów w jakikolwiek inny sposób wykraczający poza
dozwolony użytek określony przepisami ustawy z 4 lutego 1994 r. o
prawie autorskim i prawach pokrewnych (Dz. U. 1994, nr 24 poz. 83 z
późn. zm.) bez pisemnej zgody Freedom Nieruchomości Sp. z o.o. lub
podmiotów współpracujących jest zabronione i może stanowić
podstawę odpowiedzialności cywilnej oraz karnej.
Ponadto niniejsze materiały stanowią tajemnicę przedsiębiorstwa
Freedom Nieruchomości Sp. z o.o. lub podmiotów współpracujących w
rozumieniu ustawy z dnia 16 kwietnia 1993 r. o zwalczaniu nieuczciwej
konkurencji (Dz. U. z 2003 r., Nr 153, poz. 1503 z późn. zm.).
Niniejsze ogłoszenie nie stanowi oferty w rozumieniu Kodeksu
Cywilnego, lecz ma charakter informacyjny."
Sprawdź zainteresowanie tym ogłoszeniem
Wyświetlenia
Data dodania
Ostatnio widziany
Obserwujących
Wysłane zapytania
Odsłony telefonu
Powiadom o podobnych ogłoszeniach
Lokalizacja: Iława
Kategoria: Nieruchomości » Mieszkania » Sprzedaż
Cena: od 831500 zł do 1125500 zł Powierzchnia : od 104 m2 do 140 m2
Chcę otrzymywać powiadomienia o nowych ofertach
Arkadiusz Piotrowski
Konto firmowe
Na Lento.pl od 02 sty 2024
Odpowiada szybko
Strona użytkownika
- Wypromuj ogłoszenie
- Zgłoś naruszenie
- Drukuj ulotkę
- Edytuj/usuń ogłoszenie
- Udostępnij ogłoszenie
- Dodaj na Facebook































